Escritório de arquitetura especializado em reforma e construção de apartamentos, casas e projetos de infraestruturas.

PROJETO RESIDENCIAL: CASA SIDNEY

Localização: Sydney/Australia

Área: 313,00m²

Ano: 2025

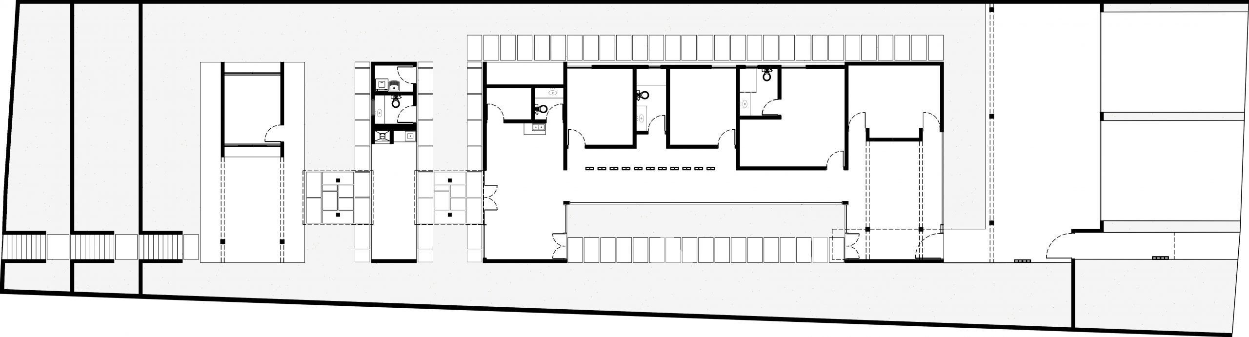
Este projeto residencial foi pensado considerando que a casa vai além do abrigo, podendo expressar significados que refletem seus moradores. O programa divide o projeto em duas partes: seguindo a orientação longitudinal do terreno, o lado oeste abriga espaços privados e funcionais, incluindo quartos, banheiros, cozinha, escritório e áreas técnicas. Já o lado leste é dedicado aos espaços de convívio, concebidos a partir da conexão com a natureza, evocando inspiração e contemplação das áreas.

CASA SIDNEY

Localização: Sydney/Australia

Área: 313,00m²

Ano: 2025

Este projeto residencial foi pensado considerando que a casa vai além do abrigo, podendo expressar significados que refletem seus moradores. O programa divide o projeto em duas partes: seguindo a orientação longitudinal do terreno, o lado oeste abriga espaços privados e funcionais, incluindo quartos, banheiros, cozinha, escritório e áreas técnicas. Já o lado leste é dedicado aos espaços de convívio, concebidos a partir da conexão com a natureza, evocando inspiração e contemplação das áreas.

IDEIA DA CAPA.psd TBS - 2

RUA DOUTOR PAULO VIEIRA 374 – SÃO PAULO/SP

+55 (11)97697-4012  TIAGO@TBSARQUITETURA.COM